• CHI SIAMO
  • GLI APPARTAMENTI
  • I POSTI BARCA
  • PRESS
  • GALLERY
  • CONTATTACI
  • CHI SIAMO
  • GLI APPARTAMENTI
  • I POSTI BARCA
  • PRESS
  • GALLERY
  • CONTATTACI

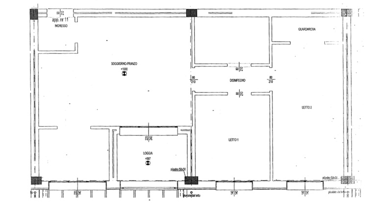
Appartamento 11

Appartamento al secondo piano da 80.28 mtq con vista a Nard composto da 2 camere, 1 bagno, 1 loggia da 5.35mtq, cantina ed ascensore per l'accesso all'appartamento.



« Torna indietro




MENU'

- CHI SIAMO - GLI APPARTAMENTI - I POSTI BARCA - PRESS - GALLERY - CONTATTACI

DOCUMENTI

- Concessione Demaniale - Convenzione PUEP - Regolamento Marinara

CONTATTI

TIM Terza Iniziative Marinare S.r.l.
Piazza Dora Markus, 12/n
48122 Marina di Ravenna (RA)
C.F. e P.iva: 02228380396

Per prenotazioni, richieste e informazioni:

Telefono +39 0544.1823556
Mobile +39 347.2510227
Mail: info@rbs-servizi.it


©2015 tutti i diritti riservati, Diffusione e duplicazione vietata con qualsiasi tecnologia